Willowhaven Apartments

266 Kitts Lane Newington, CT 06111


Project Description

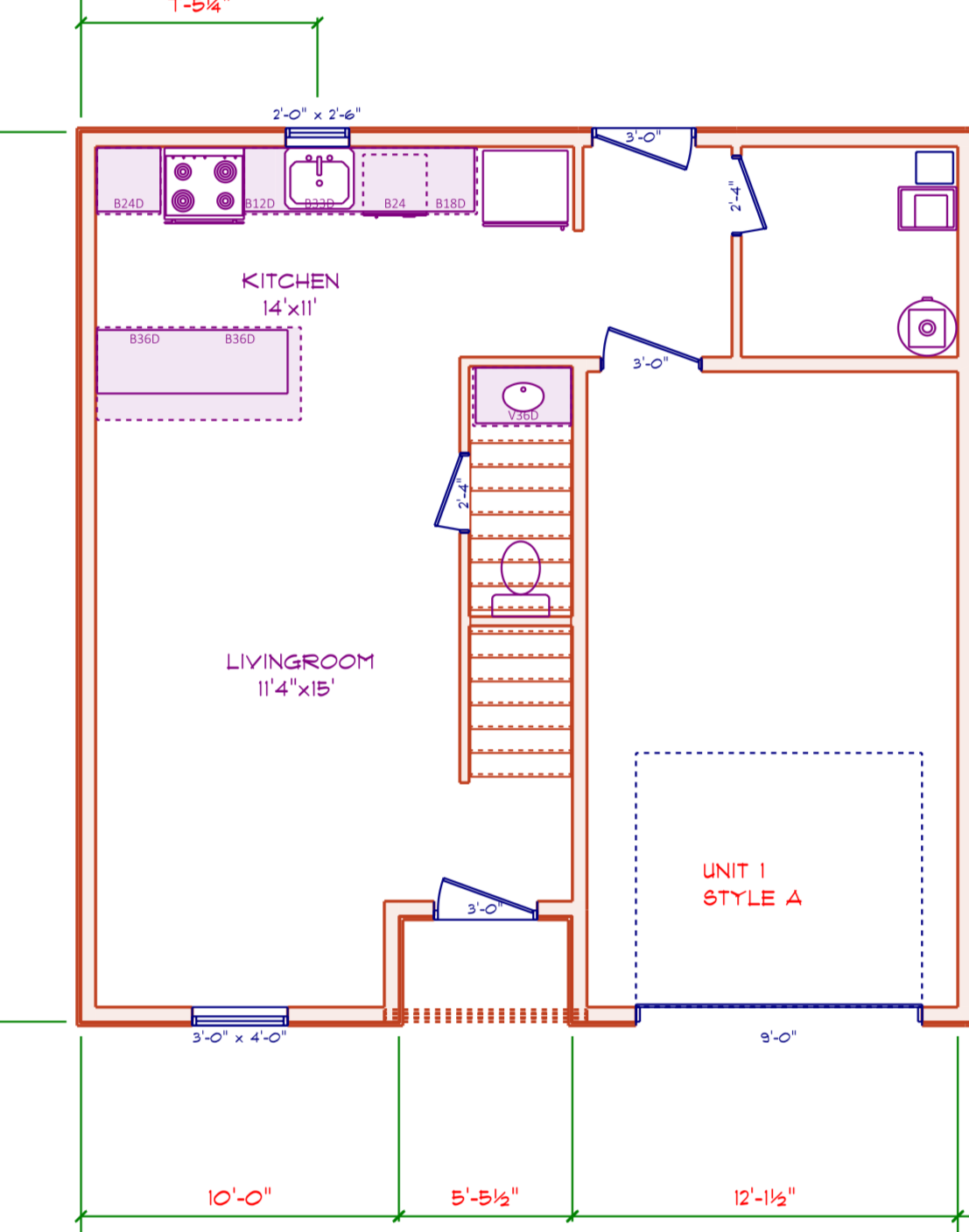
Willowhaven Apartments at Kitts Lane is a thoughtfully designed townhouse-style residential community offering a mix of duplex, fourplex, and multi-unit buildings. The development features modern, multi-level living with private entrances, integrated garages, and open-concept interiors tailored for comfort and functionality.

Across all buildings, units are designed with a vertical layout that separates living and sleeping spaces, creating a true “home” feel rather than a traditional apartment layout.

All Units Feature

  • Private garage parking

  • Open-concept kitchen and living areas

  • Multiple bedrooms with dedicated closet space

  • In-unit laundry areas

  • Contemporary bathroom layouts

  • Outdoor elements such as decks or elevated entries (seen in rear elevations)

Property Info

  • Single-Family Homes


Floor Plans

Units 1-2

Units 3-6

Units 7-15