 
       
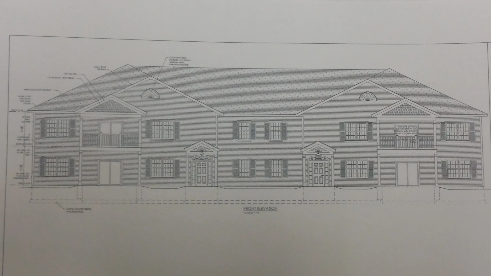
      20 two bedroom luxury apartments located at 55 Winkler Road East Windsor Ct. The development will house 2 apartment buildings and two garage buildings. Each apartment will have their own garage and storage area.
The apartments are located 1 mile from Interstate 91 (exit 45). The apartments site is centrally located between Hartford CT (15 miles) and Springfield MA (14 miles). Both can be reach by car in about 20 minutes
Premier Real Estate Services of Connecticut, LLC is a full service real estate development company which acquires land, zones parcels and builds all of its own projects throughout Connecticut:
The current focus of the company is multifamily residential developments. Over the past few years the premier companies are responsible for construction and development of over 75 apartments with another 92 multifamily residential units undergoing the zoning process to be built over the next few years.
Throughout the 80's 90's and early 2000 the focus of the Premier companies were to build single family subdivisions, office buildings and retail stores in Connecticut. During this time over 200 houses were zoned and constructed over 40,000 sq.ft. office space was built and numerous retail plazas were opened.
Premier real estate services of Connecticut has a commitment to revitalizing the region through building luxurious apartments and providing new commercial retail and office space. Premier seeks to partner with local governments or community groups to provide real estate solutions. These partnerships have transformed blighted properties into high end real estate. Whether it be remediation of contaminated land, preserving historic buildings or urban revitalization projects, we have, and will continue to better communities throughout the State by creating building solutions.
Premier Real Estate Services of Connecticut, LLC
110 Court Street, Suite 1, Cromwell CT 06416
buildingct.com | rentingct.com
Email: info@buildingct.com
Phone: 860-632-7090
© Premier Real Estate Services of CT, LLC | All Rights Reserved | Designed by Peep Frog Studio | Powered by Squarespace.